
Tolångavägen 16
Under uppbyggnad
Information om fastigheten
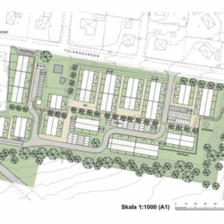
| Läge | Fritidsbacken, Sjöbo LENY förvärvade år 2020 fastigheten Sjöbo 3:32 som tidigare fungerade som vägstation. Tomten är på 26.573 kvm och avsikten med förvärvet var att bygga bostäder. Tomten gränsar i öster till Friluftsbadet och har en direkt anslutning till Sjöbos stora rekreationsområde Oran. Oran innehåller sex motionsspår från 2,7 till 9,5 km varav flera belysta. Det finns 2,5 km varierande mountinbike leder. Orebackens populära camping med kiosk, lekplats och minigolfbana. På vintern öppnas skidspår via Friluftsfrämjandet. Friluftsbadet innehåller bla. en 50m utomhusbassäng med hopptorn. Trots det naturnära läget är läget centralt med endast 400m till ICA Kvantum och 900m till busstationen. Bild 1 Situationsplan ur detaljplanen Bild 2 Markritning etapp 1 Markritning etapp 1 |
| Fastighet | Efter förvärvet beställde vi av Sjöbo Kommun en ändring av detaljplanen som påbörjades 2022. Den nya detaljplanen som medger 70 st marklägenheter i ett plan antogs av kommunfullmäktige i juni 2025. Planen är för närvarande överklagad. LENY har beställt saneringen av marken för etapp 1 under hösten 2025. Etappen 1 innefattar 18 st marklägenheter i fastighetens östra del. Som läget är, med osäkerhet kring detaljplanen, har LENY beslutat att genomföra projektet i Hjärup först och därefter fattas beslutet att byggstarta detta projekt. |

